
NA IZDUŽENOJ IZOLOVANOJ PARCELI NADOMAK JEZERA FINKEFEJN SAGRAĐENA JE KUĆA ZA ODMOR, ČIJA POVRŠINA OSNOVE IZNOSI SVEGA 55M2. NJENE NEVELIKE DIMENZIJE POTCRTAVAJU PRINCIP POTREBNOG I DOVOLJNOG, A KORISNICI PODSTIČU DA DODATNU VELIČINU I PROSTOR POTRAŽE IZVAN ZIDOVA DOMA.
Tiny Holiday Home nastala je kao rezultat zanimljivog timskog rada – saradnje arhitekte Krisa Kolarisa, koji je dao rešenje eksterijera, i biroa i29 specijalizovanog za enterijer. Najzanimljivije je to što objekat sa otiskom od svega 55m2 odaje utisak daleko većeg prostora.

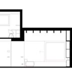
Potez je krupan, upotrebljena su op-art rešenja, a najveće preimućstvo predstavlja činjenica da se iz svakog kutka kuće pružaju otvorene vizure na okolnu prirodu. Uvođenje ambijenta u kuću je svestan i uspeo autorski čin, karakterističan za studio i29. Kompozicija prostora razvija se od unutra ka spolja i uključuje četiri volumena koji sadrže dnevni boravak, kuhinju sa trpezarijom, tri spavaće sobe, kupatilo i dva toaleta, pozicionirana oko centralnog zatvorenog dvorišta. Ovakav raspored funkcija podrazumevao je i zadatak da se pametno iskoristi svaki kvadratni santimetar raspoložive površine.

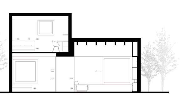
Pozicioniranje pojedinačnih volumena obavljeno je tako da se obezbede pogled na okolnu vodu i maksimalna izloženost suncu. Uvedena je podela masa na četiri dela, čime se postiglo da panoramski pogledi i prodor sunčeve svetlosti postanu veoma efektni i specifični. Gledano spolja, kompozicija se ističe ritmom, dinamikom i razuđenošću. Raznolikost i lančano pozicioniranje elemenata stvaraju sklupturalnu sliku koja iz svakog ugla izgleda drugačije.

POZICIONIRANJE ELEMENATA ZGRADE VEZANO JE ZA OTVARANJE POGLEDA NA OKOLNU VODU I POSTIZANJE MAKSIMALNE IZLOŽENOSTI SUNCU. UVEDENA JE PODELA UKUPNOG VOLUMENA NA ČETIRI DELA, ČIME SU PANORAMSKE VIZURE I PRODOR SUNČEVE SVETLOSTI POSTALI VEOMA EFEKTNI I SPECIFIČNI.

Unutrašnji prostor je takođe tretiran kao skluptura. Opet su dinamika i ritam glavni katalizatori kompozicije – dimenzije i visine plafona su različite, te ovako definisani volumeni jasno artikulištu odvojene prostore i njihoe funkcije u kući. Otvaranjem velikih kliznih vrata, kuhinja i dnevni boravak postaju ne samo vizuelno, nego i fizički povezani. Nameštaj pravljen po meri i ugradni ormari dodatno naglašavaju kvalitet komfora i princip adaptibilnosti u domu.U projektu su korišćeni jednostavni materijali, sa naglaskom na njihovom prirodnom poreklu. Drveni paneli od prirodnog hrasta su ili bez boje ili su obojeni u crno, a kombinovani su sa grubom fasadom od borovog drveta i uglančanim podom. –ek MARE JANAKOVA GRUJIĆ u EKO KUĆI No40













