Cécile Brisac jedna je od 10 predavača na 7. medjunaronom kongresu ODRŽIVA ARHITEKTURA.
PULSIRAJUĆE TKIVO NASTALO U SAMOM CENTRU PARIZA ŽIVA JE MANIFESTACIJA KREATIVNE ENERGIJE I POVEZIVANJA. KROZ SVOJU JEDINSTVENU AURU SVETLOSTI, BOJA I ZVUKOVA, OVAJ OBJEKAT MEŠOVITE NAMENE POSTAJE MESTO GDE SE LJUDI I PROSTOR SJEDINJUJU U HARMONIJI. POVEZIVANJE RAZLIČITIH IDEJA NIJE SAMO SREDSTVO, VEĆ SUŠTINA NJEGOVOG IDENTITETA. SVAKA PROSTORIJA NOSI PRIČU KOJA SE PREPLIĆE SA PRIČOM GRADA, RAZVIJA SE I RASTE ZAJEDNO SA SVOJIM KORISNICIMA.
U centru Pariza, gde se istorija susreće sa modernim urbanizmom, nastao je odvažan projekat koji nadmašuje konvencionalne granice arhitekture. Ova građevina mešovite namene ne samo da redefiniše pojam socijalnog stanovanja, već otvara nove horizonte održivog razvoja, dokazujući da kompleksan program, visoka urbana gustina i strogi ekološki zahtevi mogu rezultirati visokokvalitetnim, prostranim i elegantnim dizajnom socijalnog stanovanja i javnih zgrada. Kroz sinergiju funkcionalnosti i estetike, prostor postaje više od mesta za život – postaje živa umetnost koja reflektuje svetlost, prozračnost i harmoniju unutar gustog urbanog tkiva.

Lakoća i otvorenost
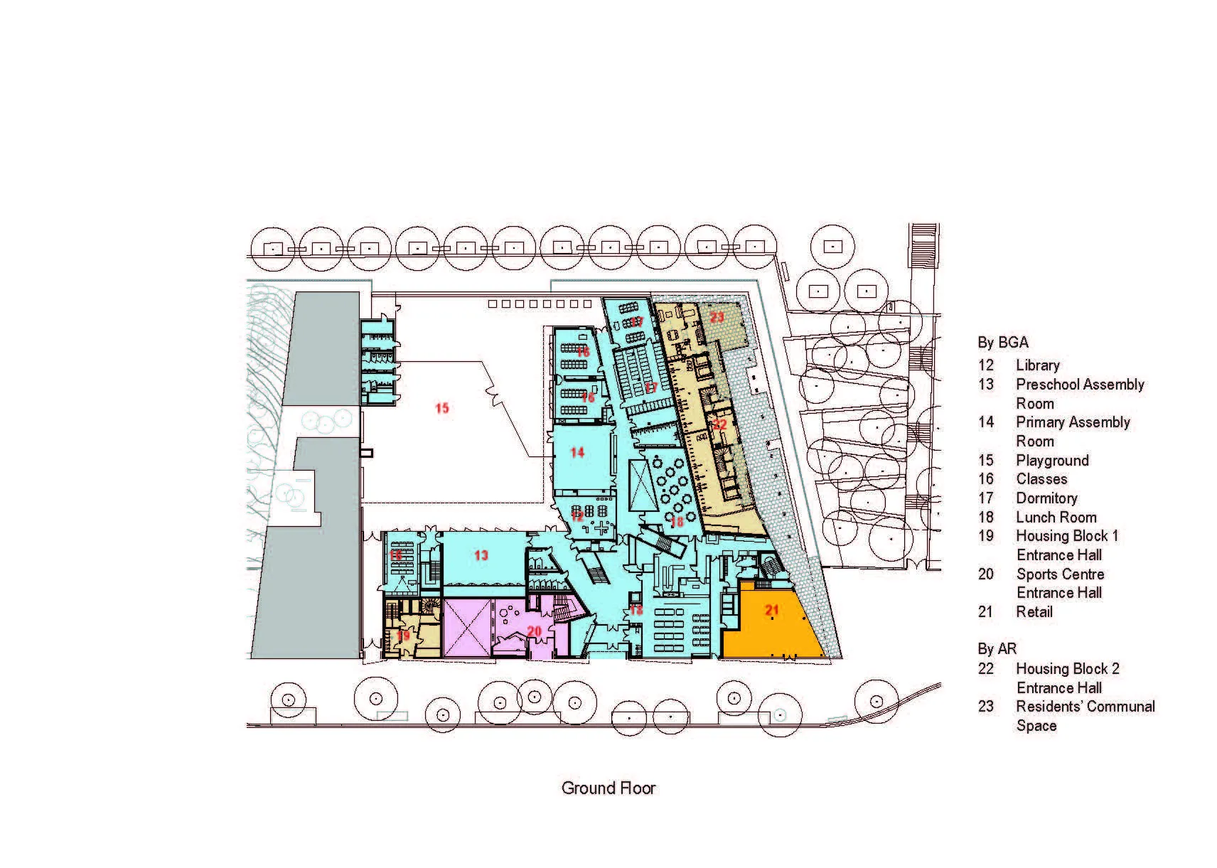
Lokacija se nalazi između novog parka i ulice, a obuhvata 144 jedinice socijalnog stanovanja, modernu osnovnu školu sa 15 učionica i regionalni sportski centar. Dizajn eksterijera koristi pristup koji stvara utisak prostranosti i slobode, smanjujući tako osećaj zbijenosti i omogućavajući lakoću i otvorenost. Forma kompleksa je improvizacijska u svojoj prirodi, što svakom od volumena omogućava da bude glavni u određenom trenutku. Pažljivo oblikovani i balansirani, pojedinačni delovi se nenametljivo uklapaju i stvaraju harmoničan sklad.

Tri glavne komponente programa su raspoređene u dve visoke graciozne strukture koje formiraju definisan, ali otvoren ugao. Ova konfiguracija omogućava prodor prirodne svetlosti u blok i stvara prostor za južno orijentisanu raskošno uređenu krovnu terasu. Balkoni koji okružuju zgradu sa svih strana, doprinose stvaranju atmosfere svetlosti i prozračnosti unutar gustog urbanog okruženja u srcu grada. Apstrahujući fenomen linije i boje u dizajnu balkonskih ograda, autor je otkrio njihovu izražajnu komponentu koja nadmašuje ljudsku maštu.
ISKRENOST I OGOLJENOST STVARALAČKOG PRISTUPA AUTORA IZNEDRIO JE PROSTOR KOJI POSEDUJE JEDINSTVENU AURU – VIBRACIJE, ENERGIJU I ATMOSFERU. TAKAV PRISTUP NE ZASNIVA SE SAMO NA RACIONALNOSTI I EKONOMSKIM FAKTORIMA, VEĆ NAGLAŠAVA NEOPIPLJIVU SENZORNU DIMENZIJU DOŽIVLJAJA PROSTORA. ONA PROISTIČE IZ ISKUSTAVA KOJA OVAJ OBJEKAT PRUŽA SVOJIM KORISNICIMA.

Socijalna interakcija
Zgrada je pažljivo osmišljena da podstakne socijalnu interakciju kroz bogatstvo sadržaja koji promovišu zajedništvo i povezanost. Krovna bašta pruža prostor za okupljanje stanara u prirodnom okruženju, a u radionici za popravku bicikala često se okupljaju stanovnici i dogovaraju se kako da zajednički reše svakodnevne izazove. Ovi prostori ne samo da jačaju društvene veze, već i značajno unapređuju kvalitet života unutar zajednice. Velikodušnim uvođenjem javnih prostora i dodatnih sadržaja, projekat stvara bogatu tapiseriju zajedništva i interakcije.

Posebna pažnja posvećena je stvaranju osećaja otvorenosti i prozračnosti. Sve to čini ovaj projekat primerom kako arhitektura može biti instrument za stvaranje snažne, povezane zajednice, gde svaki član oseća pripadnost i zadovoljstvo. Iskrenost i ogoljenost stvaralačkog pristupa autora iznedrio je prostor koji poseduje jedinstvenu auru – vibracije, energiju i atmosferu. Takav pristup ne zasniva se samo na racionalnosti i ekonomskim faktorima, već naglašava neopipljivu senzornu dimenziju doživljaja prostora. Društveno mešanje doprinosi rastu, nadi i motivaciji, a uz to pruža sigurnost u budućnost i dobrobit, dok otvorene zelene površine proizvode efekat oporavka i osnažuju povezanost sa prirodom i okruženjem.

Obilje svetlosti
Enterijer objekta ističe se pažljivim dizajnom koji maksimizuje prirodno osvetljenje i kvalitet prostora. Drveni podovi, visoki akustični standardi, velika francuska vrata od drveta i aluminijuma i prostrani balkoni doprinose udobnosti stanova. Unutrašnji prostori svake komponente (škole, sportskog centra, blokova stanova) imaju jedinstven identitet, sa pažljivo odabranim materijalima i tonovima.

Prostor u sportskom centru je jednostavan, sa svetlim betonom i čeličnim stubovima, dok svaka soba za aktivnosti ima poseban karakter. U školi su korišćeni meki i prirodni tonovi sa svetlim drvenim panelima i podovima popločanim gradacijom žutih i smeđih nijansi. Slojevi umetničkog u ovom enterijeru ostvareni su kroz autentičnost elemenata ritma, kontrasta, ravnoteže, proporcije i jedinstva. Oni ne teže tipičnim rešenjima, već istinski izražavaju suštinu arhitektonskog stvaralaštva. Odnoseći se prema pojmu osvetljenja kao opažajnom generatoru prostora, autor stvara objekat čiji je doživljaj uslovljen percepcijom prisustva prirodne svetlosti.

Ona je pažljivo usmerena kroz različite prostorije, lagano se probija kroz hodnike i igra se duž površina, čime se stvara dopadljiva atmosfera prozračnosti. Ovaj efekat dodatno naglašava otvorenost prostora i omogućava prirodnoj svetlosti da obasja svaki kutak, stvarajući time prijatan ambijent.


Transformišući se u mesto obilja svetlosti i transparentnosti, ovaj dizajn pokazuje da savremena arhitektura može delovati kroz reinterpretaciju tradicionalnih elemenata, istovremeno pozivajući na promene i otpor u percepciji i korišćenju prostora.

Ovaj projekat sa visokim ekološkim performansama sledi smernice Eko-distrikta i ciljeve niske potrošnje energije, pokazujući kako održivi dizajn može rezultirati visokokvalitetnim multifunkcionalnim prostorom u srcu metropole. Svetlost koja obasjava svaki delić ove zgrade simbolički osvetljava put ka revitalizaciji socijalne kohezije. U vremenu kada je otuđenost sveprisutna, ovaj bastion svetlosti inspirisan prirodom i ljudima transformiše urbani prostor i socijalne obrasce, obogaćujući svoje prvobitno značenje, te postavljajući nove standarde za budućnost grada i društva.
Za više ovakvih objava posetite našu rubriku arhitektura.



































