KONCEPT MUZEJA KAO JAVNOG PROSTORA GRADA I NJEGOVO UKLJUČIVANJE U SADRŽAJE PRISUTNE NA UŽOJ I ŠIROJ LOKACIJI, DEFINIŠE OBJEKAT MUZEJA GRADA BEOGRADA KAO NOV, IZUZETNO ZNAČAJAN DOPRINOS RAZVOJU KULTURE PRESTONICE KOJI PREDSTAVLJA SPOJ ZATEČENOG KARAKTERA I UKLAPANJA NOVIH PROSTORNIH CELINA.
Istorijat objekta
Objekat budućeg Muzeja grada Beograda lociran je na teritoriji opštine Savski Venac, u Resavskoj ulici na broju 40b. Prvoizgrađeni deo objekta, tadašnja zgrada Nove vojne akademije, podignut je 1899. godine prema projektu arhitekte Dimitrija T. Leka, u duhu neorenesansne arhitekture. Drugi deo, ka Nemanjinoj ulici, dograđen je nakon Prvog svetskog rata. Tokom svog postojanja, zgrada je više puta menjala namenu i korisnika. Kao objekat značajnih arhitektonsko-urbanističkih i kulturno-istorijskih vrednosti, zgrada uživa status ‘spomenik kulture prethodne zaštite’.

Novoprojektovani objekat predviđa rekonstrukciju i dogradnju postojećeg objekta, a u svemu prema idejnom rešenju autora Dr Jelene Ivanović Vojvodić i prof. Gorana Vojvodića iz projektnog preduzeća BIRO VIA, prvonagrađenom radu na dvostepenom konkursu za dizajn.

Kompozicija postojećeg objekta je u obliku ćiriličnog slova Ш i ima podužnu fasadu prema Resavskoj ulici dužine preko 115 metara. Glavni ulaz je iz Resavske ulice, dok su sporedni ulazi sa dvorišne strane. Zgrada se sastoji od dve suterenske etaže, prizemlja, sprata i velikog tavanskog prostora.

Koncept projekta
Postojeći objekat je zadržan u svom volumenu i gabaritu prema spoljašnim ulicama. Centralna stepenišna vertikala prema dvorištu je uklonjena, čime je omogućeno formiranje jedinstvenog kontinualnog gabarita dograđenog dela muzeja. Spoj sadržaja postojećeg objekta i novoprojektovanog prostora ostvaren je horizontalnim komunikacijama kroz hodnike, galerije, mostove, kao i centralnim otvorenim stepeništem sa dva panoramska lifta.

Ovakvim konceptom je omogućena maksimalna fizička i vizuelna dostupnost najvećeg broja sadržaja i eksponata. Fasada postojećeg objekta će biti rekonstruisana prema uslovima Zavoda za zaštitu spomenika kulture grada Beograda. Rekonstrukcija će obuhvatiti promene prozora, vrata, portala, oluka i venaca. Obuhvata i postavljanje krovnih prozora na potkrovlju prema dvorištu i prema obodnim ulicama kako bi se omogućila veća količina svetlosti.

Dograđeni novoformirani gabarit spratnosti Su+Pr+2+Pk pozicioniran je tako da omogući maksimalnu prosvetljenost sadržaja kontinualnom lanternom nad međuprostorom. Njegovom dispozicijom je takođe formirano kvalitetno, sadržajima obogaćeno unutrašnje dvorište kao simbol novog indetiteta spoljašnjeg-unutrašnjeg prostora budućeg muzeja.
PRVA NAGRADA NA JAVNOM OTVORENOM DVOSTEPENOM ARHITEKTONSKOM KONKURSU ZA REKONSTRUKCIJU OBJEKTA U RESAVSKOJ 40B I NJEGOVU PRENAMENU U MUZEJ GRADA BEOGRADA. SPROVODILAC KONKURSA JE DRUŠTVO ARHITEKATA BEOGRADA, 2016. GODINE.
Pozicija glavnog ulaza je osim proširivanjem naglašena i formiranjem dvovisinskog ostakljenog ulaznog portala. Time je ostvarena reprezentativna ulazna zona kao i kvalitetniji vizuelni spoj unutrašnjosti objekta sa spoljašnim prostorom grada u neposrednom okruženju. Novim rešenjem – povećanjem volumena ulaznog hola, postignuta je veza sa unutrašnjim sadržajima objekta, kao i sa dvorištem koje je u funkciji javnih sadržaja muzeja. Ulazni portal je dodatno markiran elementom nadstrešnice sa logotipom i neophodnim informacijama. Službeni ulaz je na delu objekta prema Nemanjinoj ulici, ali mu se pristupa iz Birčaninove kroz postojeći prolaz. Kroz njega je omogućen servisni pristup, dopremanje izložbenih eksponata, materijala i kancelarijskih sredstava, kao i distribucija opreme i servisiranje tehnike.

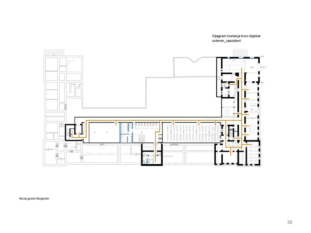
Distribucija korisnika je organizovana na više mesta-ulaza u skladu sa potrebama, dok su vertikalne komunikacije organizovane u četiri bloka. Jedan službeni blok, jedan za potrebe gostujućih izložbi sa pripadajućim liftovima, kao i dva bloka vertikala sa pripadajućim sadržajima za prijem eksponata i tehnički ulaz. Međusobni spoj u levom i desnom bloku zgrade omogućen je otvaranjem tehničkog hodnika na nivou suterena. Hodnik obezbeđuje vezu depoa i ostalih sadržaja po svim nivoima što sprečava ukrštanje sa ostalim tokovima i putanjama posetilaca. Predviđen je ulaz i specijalno izolovan prostor za kamione i dopremu eksponata iz Nemanjine ulice.

LICIMA SA POSEBNIM POTREBAMA I NJIHOVOM KRETANJU OVAJ PROJEKAT POSVEĆUJE POSEBNU PAŽNJA NA NAČIN DA JE CELOKUPNA REGULACIJA PRILAZA URAĐENA U NIVOU SA TROTOAROM ISPRED OBJEKTA, KAO I FORMIRANJEM PRILAZNIH RAMPI. VERTIKALNE KOMUNIKACIJE SU PROJEKTOVANE SA SVIM POTREBNIM ULAZNIM PODACIMA, ŠTO LICIMA SA POSEBNIM POTREBAMA OMOGUĆAVA DA SE NEOMETANO KREĆU I BORAVE U OBJEKTU.
Izložbeni prostori su centralno postavljeni i organizaciono spojeni sa delom objekta ka Birčaninovoj ulici. Koncept izložbenih eksponata i dizajna postavki razvijaće se u svemu prema prostornim i tehnološkim rešenjima savremenih muzejskih prostora. Poseban akcenat je u formiranju foajea u okviru izuzetno malog volumena postojećeg ulaznog hola koji je proširen rušenjem dela galerije. Time se formira prostor reprezentativnog ulaza i kvalitetnijeg pristupa svim sadržajima i komunikacijama ka odgovarajućim zonama objekta.

Dograđeni novoformirani prostor (paralelno sa unutrašnjom podužnom fasadom objekta, spratnosti Su+Pr+2+Pk) organizovan je u tri nadzemne i jednoj podzemnoj etaži. Namenjen je javnim i muzejskim sadržajima (informaciona zona, stepenišne vertikale, panoramski lift, depoi itd.). Novoprojektovani dodatni gabarit je svedenog volumena, čime se podržava arhitektura postojećeg objekta, sa ostakljenom trakom na nivou prizemlja prema dvorištu. Na delu ravnog krova koji je pokriven sitnim šljunkom nalazi se krovna terasa pokrivena dekingom, a osmišljena je za javnu upotrebu. Dvorišni deo je obogaćen zelenim površinama, drvoredom i ozelenjenim zidom prema susednoj parceli.
CENTRALNI MOTIV DVORIŠTA JE ARHEOLOŠKI LAPIDARIJ, DEO IZLOŽBENE POSTAVKE MUZEJA NA OTVORENOM, DOK SU U NJEGOVOJ PRATNJI SPOLJNI AMFITEATAR I PLATOI SA URBANIM MOBILIJAROM.
Funkcionalna organizacija
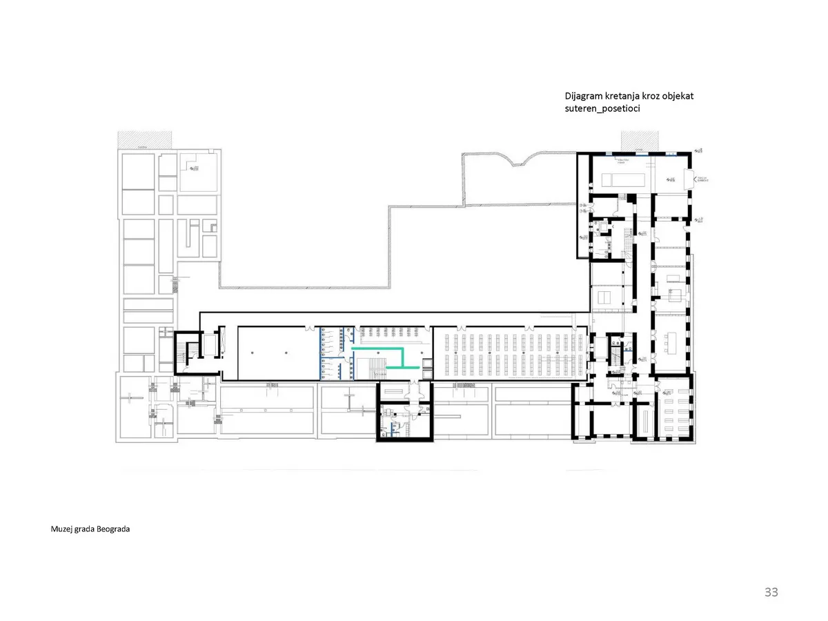
Suteren objekta čine podrumske prostorije koje će biti sanirane prema najnovijim standardima za ovu vrstu radova pri rekonstrukcijama objekata. Na nivou suterena su smeštene tehničke prostorije, sanitarni prostori, depo strateške zaštite, depo zaraženih materijala, ulaz za kamione, prijem eksponata i registracija, magacini realizovanih izložbi i sl.

Prizemlje objekta je ujedno i glavni pristupni nivo na kome su organizovani sadržaji tematskih izložbi, kafe, knjižara, prodavnica, konferencijska sala, gostujuće izložbe itd. U delu objekta prema Nemanjinoj ulici predviđeni su depoi papirnog materijala i arheologije, radni prostor depoa i dr. U delu objekta iz Birčaninove ulice smešteni su službeni ulaz, tehničke prostorije, magacini i prateći prostori.


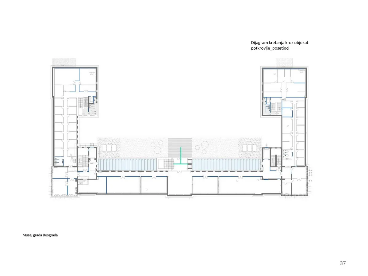
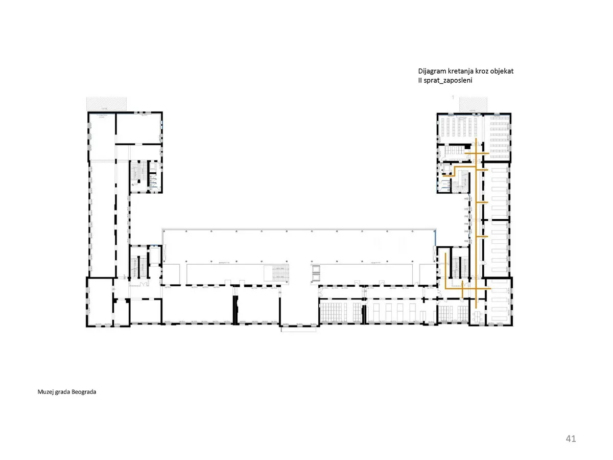
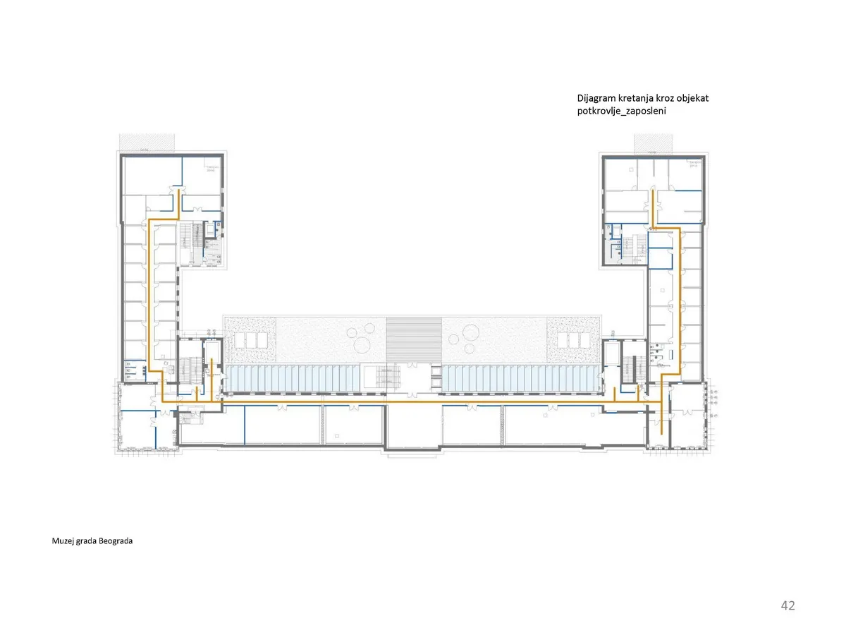
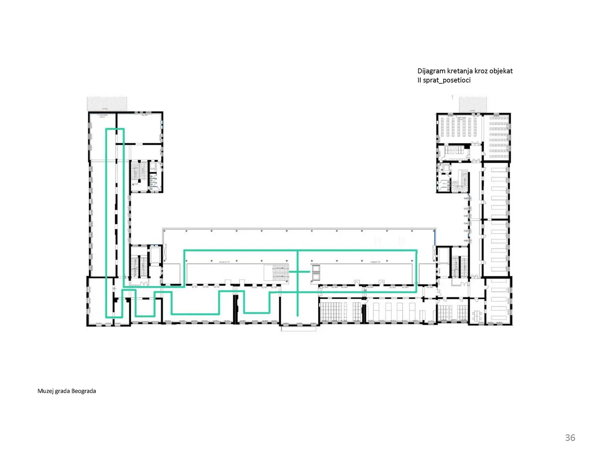
Drugi sprat objekta je, zajedno sa prvim spratom, glavni nivo za stalne izložbene postavke, prostor za edukativne radionice u delu objekta prema Birčaninovoj ulici sa pratećim sanitarnim prostorima i komunikacijama. U delu objekta prema Nemanjinoj ulici su depoi slika, skulptura, nameštaja i tekstila, kao i ostali radni prostori i odeljenja. Potkrovlje objekta je predviđeno za kancelarije uprave muzeja, direktora i pratećih službi, odeljenje istorije, istorije kulture i umetnosti, arheologije i zaštite, a tu će biti smešteni i konferencijska sala, računovodstvo, muzejski edukatori, konzervatorske radionice, izdavaštvo, foto studio i dr.

Depoi su pozicionirani prema Nemanjinoj ulici. Organizacija depoa odgovara funkcionalnim zahtevima iznetim u programu i prostorno-funkcionalnim karakteristikama objekta. Time je ostvarena dobra povezanost radnih prostora i pratećih sadržaja sa prostorima depoa. Spoj između svih potrebnih depoa je ostvaren teretnim liftovskim postrojenjima, dok je njihova direktna veza ostvarena na nivou suterena kako bi se neometano vršile funkcije transporta i skladištenja van javnih tokova muzeja.

Aktivacija unutrašnjeg dvorišta
Dvorište objekta je prethodno tretirano samo kao servisna i saobraćajna površina, a sada je integrisano u javne prostore muzeja. Parterna površina je sveobuhvatno prekrivena zastorom od formatizovanih kamenih ploča i kombinovana je sa zelenim površinama. Centralni motiv dvorišta je arheološki lapidarij, deo izložbene postavke muzeja na otvorenom, dok su u njegovoj pratnji spoljni amfiteatar (predavanja, edukacije, otvorena scena i sl.) i platoi sa urbanim mobilijarom. Time je omogućena interakcija i ekstenzija unutrašnjih sadržaja na nivou glavnog pristupa objektu (kafeterija, sala za projekcije, izložbeni prostori gostujućih i tematskih izložbi) u spoljnu sredinu. Deo dvorišta ka desnom krilu objekta ima zelenu površinu sa zelenim zasadima i drvoredom.

Saobraćajno rešenje je proisteklo iz novopostavljene distribucije sadržaja i komunikacija u MGB, gde parkiranje vozila nije planirano na parceli. U skladu sa normativima i standardima, posetioci i zaposleni će koristiti javne saobraćajne površine i javne garaže u okruženju. Za potrebe funkcionisanja muzeja omogućen je kolski pristup iz Birčaninove ulice. Drop-off zona za grupne posete nalazi se u Resavskoj ulici, a nastala je delimičnim zauzimanjem postojećeg trotoara. Predviđen je i ulaz za kamione i dopremu eksponata iz Nemanjine ulice, koji omogućuje direktnu vezu eksponata sa depoima i prijemnim odeljenjem.
KONCEPT UREĐENJA ENTERIJERA JE UKLAPANJE NOVIH PROSTORNIH CELINA UZ POTENCIRANJE KARAKTERA I KAPACITETA ZATEČENOG OBJEKTA.
Očuvanje prošlosti kroz materijalizaciju
Jednostavnost i neutralni ambijenti glavni su motiv i nov identitet prostora i interaktivnih sadržaja koji kao takvi imaju za cilj da boravak u prostoru muzeja učine prijatnim i svrsishodnim kako za stručnu, tako i za široku publiku. Koncept objekta autora arhitekte Dimitrija Leka biće vidljiv i u enterijeru, što će omogućiti spoj novog i starog objekta na najbolji način.

Rekonstrukcijom objekta planira se isticanje materijalizacije koja postoji u originalnim delovima objekta (stubovi u nekadašnjoj balskoj dvorani koji su bili specijalno liveni i dopremljeni iz Budimpešte, delovi plafona i delovi zidova postojeće konstrukcije) radi očuvanja ‘memorije mesta’. Predviđeno je oblaganje fasadnih delova zidova gips-kartonskim pločama sa odgovarajućom obradom radi regulisanja potrebnih mikroklimatskih zahteva u odnosu na osetljivost eksponata i specijalne režime čuvanja zbirki ili pojedinačnih artefakata.

Projektnom dokumentacijom je ostvarena ukupna površina od 17.000m2, od čega je u novoprojektovanom dograđenom delu objekta oko 3.300m2.
Koncept muzeja kao javnog prostora grada i njegovo uključivanje u sadržaje prisutne na užoj i široj lokaciji, definiše objekat Muzeja grada Beograda kao nov, izuzetno značajan doprinos razvoju kulture prestonice.
Goran Vojvodić, prof Arhitektonskog fakulteta Univerziteta u Beogradu
Za više ovakvih objava posetite našu rubriku arhitektura.



























































